Фасадная система Alucom KN под Терракотовые панели и объёмная керамика

  • Описание системы
  • Документация к системе
  • Фотографии + чертежи + узлы
  • Комплектующие
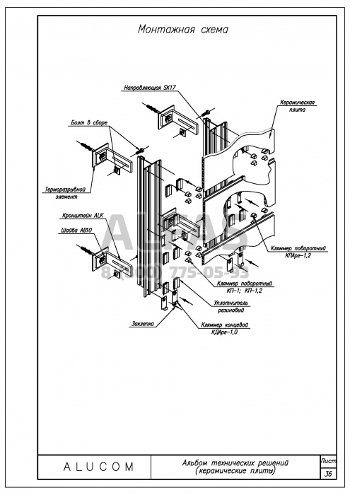
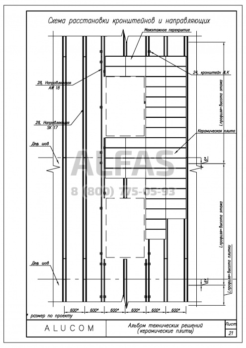
Alucom KN — алюминиевая подоблицовочная конструкция, выполненная из сплава А6060Т66.

Диапазон регулировки относа от стены от 40 мм до 320мм.
В качестве облицовки используются плиты из керамики толщиной от 18 до 40 мм.

Крепление осуществляется открытым способом при помощи поворотного кляммера, изготовленного из нержавеющей стали 12Х18Н10Т.

Особенности системы:


  • Надежность крепления всей конструкции за счет применения болтового соединения кронштейна и направляющей.
  • Быстрота сборки, обусловленная оригинальной конструкцией поворотного кляммера.
  • Концевые и поворотные кляммера устанавливаются в пазы вертикальной направляющей, что облегчает процесс монтажа и предотвращает перекос плиток.
  • Эстетическая привлекательность, характеризующаяся возможностью уменьшить швы между плитками до 4-6 мм.

620e7515b028132b8e343c6b8ee535f9
620e7515b028132b8e343c6b8ee535f9
a2baa9e55b84ef0f3f08757a3986b950
a2baa9e55b84ef0f3f08757a3986b950
360a5d082ae86701eec2fc79b02cafb1
360a5d082ae86701eec2fc79b02cafb1
6d203344b2e7361168c289586230ec1c
6d203344b2e7361168c289586230ec1c
62ce47e6fe2d1b2001730a469f1a70c4
62ce47e6fe2d1b2001730a469f1a70c4
629e79ee728870080ee505178bc86d3f
629e79ee728870080ee505178bc86d3f
Для вас предусмотрена скидка от базовых цен!
Отправить заявку

Другие фасадные системы под
Терракотовые панели и объёмная керамика

Заказать расчёт сметы. БЕСПЛАТНО!