Фасадная система NordFox MTA-v-100 под HPL – панели

  • Описание системы
  • Документация к системе
  • Фотографии + чертежи + узлы
  • Комплектующие
Самый простой и дешевый способ крепления листовых панелей облицовки.

Возможно крепление как со специальными втулками для хрупких материалов, так и без них.

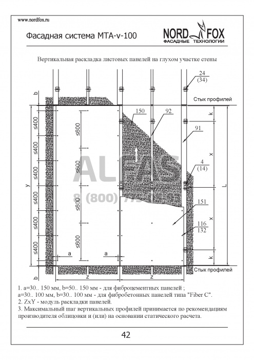
Материал облицовки: плиты из фиброцемента, асбестоцемента, бумажнослоистого пластика (HPL), панели фасадные из минеральной (каменной) ваты.

Способ крепления облицовочного материала: вытяжные заклепки или самонарезающие винты;

Максимальные размеры облицовки: 3200х1200мм (горизонтальное и вертикальное расположение).

Вынос облицовочного материала от плоскости стены: 53—516мм.

Решения оконных обрамлений: оцинкованная сталь или материал облицовки основной плоскости

Вариант крепления кронштейнов:

  • стандартный – с креплением в стены;
  • межэтажный – с креплением в перекрытия.

e579848fe11e2b6bf7d1865416bc7120
e579848fe11e2b6bf7d1865416bc7120
ec1ec59d89683d7d6308e62c3aa94c9e
ec1ec59d89683d7d6308e62c3aa94c9e
d102a76db02fc169d416a256340aa5f4
d102a76db02fc169d416a256340aa5f4
34db7b4a29db050e6e7313c80c1c16ae
34db7b4a29db050e6e7313c80c1c16ae
157e4ff612e68cd4bd4e414de3be785e
157e4ff612e68cd4bd4e414de3be785e
17dd067b0dfe846e4802ee9f3496226f
17dd067b0dfe846e4802ee9f3496226f
Для вас предусмотрена скидка от базовых цен!
Отправить заявку

Другие фасадные системы под
HPL – панели

Заказать расчёт сметы. БЕСПЛАТНО!