Фасадная система Альфа-керамогранит под Фасадный керамогранит

  • Описание системы
  • Документация к системе
  • Фотографии + чертежи + узлы
  • Комплектующие

Конструкция навесной фасадной системы с воздушным зазором (далее - НФС) с облицовкой керамогранитными плитами с видимым креплением "АЛЬФА-Керамогранит" предназначена для облицовки фасадов и утепления с наружной стороны вновь строящихся и реконструируемых зданий и сооружений различного назначения всех уровней ответственности, степеней огнестойкости и классов функциональной и конструктивной пожарной опасности в местностях, относящихся к различным ветровым районам с различными геологическими и геофизическими условиями - в соответствие с подтвержденной расчетами и испытаниями несущей способностью конструкций, а также к районам с различными температурно-климатическими условиями - в соответствие с результатами теплотехнических расчетов и к районам с неагрессивной, слабоагрессивной и среднеагрессивной внешней средой

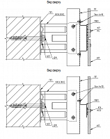
НФС "АЛЬФА-Керамогранит" представляет из себя комплект изделий, состоящий из несущих кронштейнов, вертикальных и горизонтальных направляющих профилей из коррозионностойкой или оцинкованной стали с дополнительным двухсторонним антикоррозионным полимерным покрытием, теплоизоляционных изделий, защитной мембраны (при необходимости), облицовки из керамогранитных плит с видимым креплением, деталей примыкания системы к строительному основанию и крепежных изделий.

056b3c43e7e7b238c5ca825369db99c9
056b3c43e7e7b238c5ca825369db99c9
157be9d30b06cfdea07cfa4fbc90f1b7
157be9d30b06cfdea07cfa4fbc90f1b7
c3f00405d01fbc1c1799160288b82168
c3f00405d01fbc1c1799160288b82168
333ba580e9072daec0e8324f4e8547a9
333ba580e9072daec0e8324f4e8547a9
38677832c5d7fa80ab11095df685f077
38677832c5d7fa80ab11095df685f077
Для вас предусмотрена скидка от базовых цен!
Отправить заявку

Другие фасадные системы под
Фасадный керамогранит

Заказать расчёт сметы. БЕСПЛАТНО!