Конструкция навесной фасадной системы с воздушным зазором (далее - НФС) с облицовкой металлокассетами, профилированным листом, металлосайдингом "АЛЬФА-Металлокассеты" предназначена для облицовки фасадов и утепления с наружной стороны вновь строящихся и реконструируемых зданий и сооружений различного назначения всех уровней ответственности, степеней огнестойкости и классов функциональной и конструктивной пожарной опасности в местностях, относящихся к различным ветровым районам с различными геологическими и геофизическими условиями - в соответствии с подтвержденной расчетами и испытаниями несущей способностью конструкций, а также к районам с различными температурно-климатическими условиями - в соответствии с результатами теплотехнических расчетов и к районам с неагрессивной, слабоагрессивной и среднеагрессивной внешней средой.
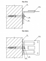
НФС "АЛЬФА-Металлокассеты" представляет из себя комплект изделий, состоящий из несущих кронштейнов, вертикальных и горизонтальных направляющих профилей из коррозионностойкой или оцинкованной стали с дополнительным двухсторонним антикоррозионным полимерным покрытием, теплоизоляционных изделий, защитной мембраны (при необходимости), облицовки (металлокассеты, профилированный лист, металлосайдинг), деталей примыкания системы к строительному основанию и крепежных изделий.